100 mq
3
2
Garage/Posto Auto
Autonomo
A4

Descrizione

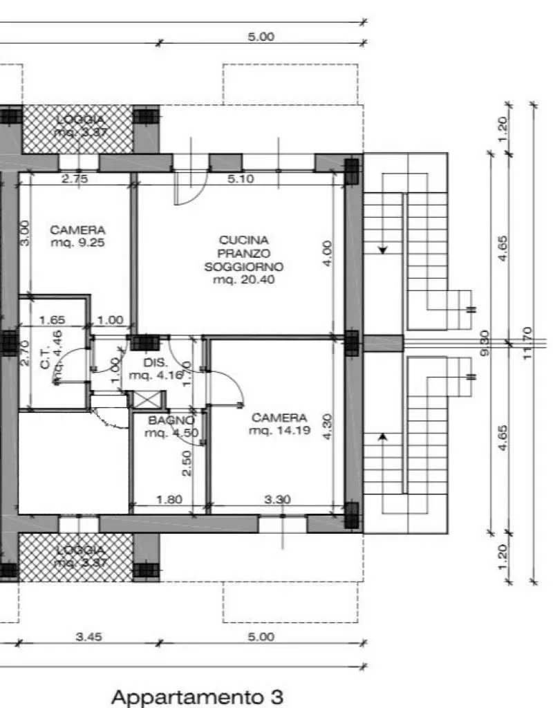
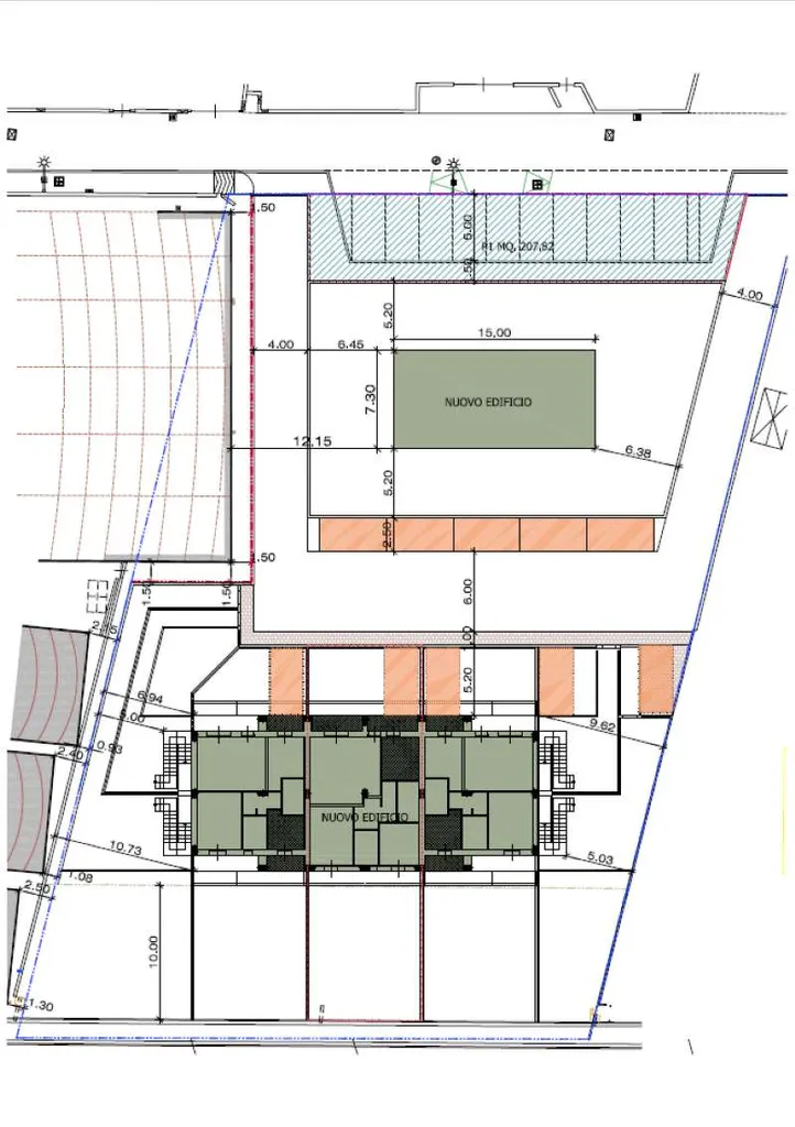
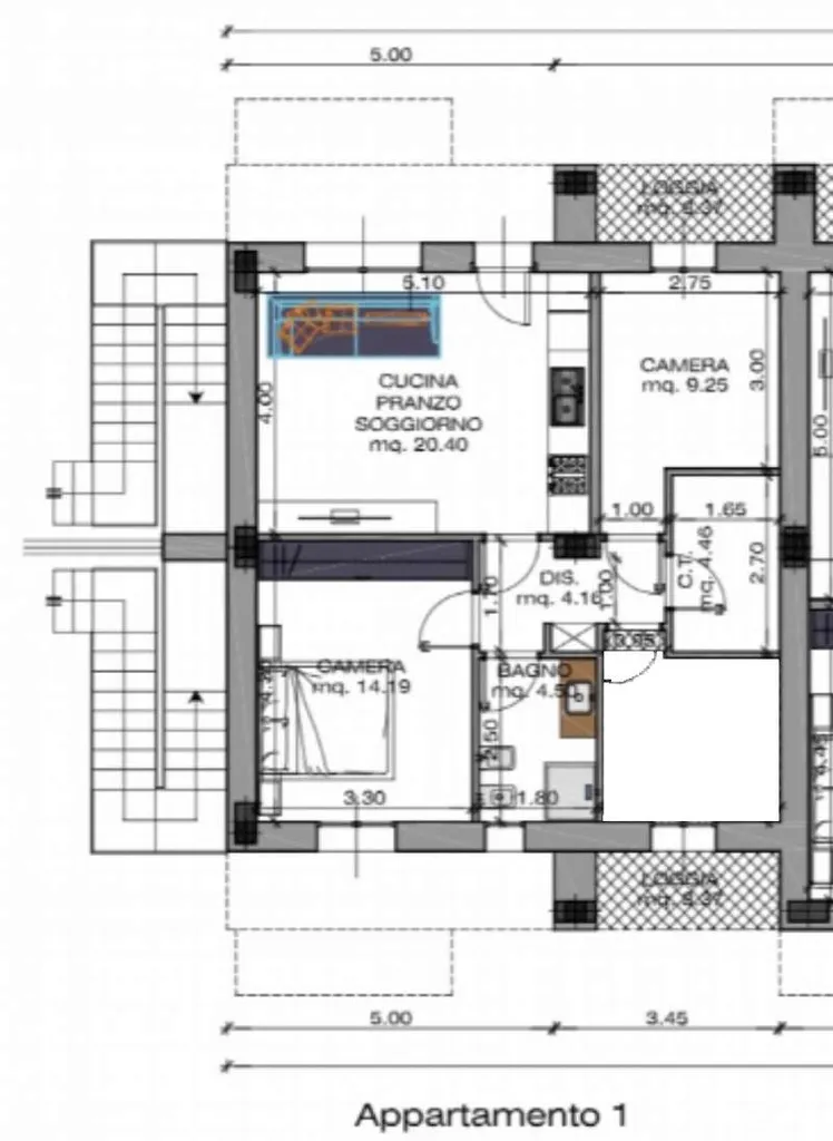
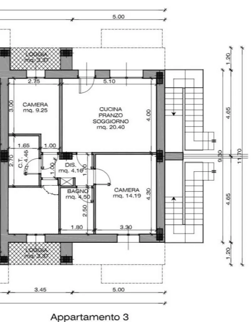
BELLARIA IGEA MARINA - In nuovo contesto residenziale, a pochi passi dal nuovo lungo mare e dal Palco del Gelso, proponiamo in vendita appartamenti in villa al piano terra sviluppati su un unico livello, di ultima generazione, con caratteristiche costruttive performanti. A caratterizzare l'immobile uno stile moderno, notevoli comfort e massimo risparmio energetico. La soluzione presenta ampia zona soggiorno pranzo, tre comode camere da letto e due bagni. A completare la soluzione posto auto privato all'interno della corte. Consegna Dicembre 2027 . Per ulteriori informazioni o fissare un appuntamento ROBERTA 3318080924.

Planimetrie

Altre caratteristiche

Stato Immobile
Nuovo
Vani
6
Tipo di cucina
Aperta
Posto auto
Riservato
Metratura giardino
140
Piano
Terra
Tipologia Immobile
Appartamento
Categoria Immobile
Case e Appartamenti
Contatta Agenzia
Proposto da: RETE IMMOBILIARE

Quotazioni immobiliari per Bellaria-Igea Marina