120 mq
3
2
Garage/Posto Auto
Giardino privato
Arredato
Autonomo
G

Descrizione

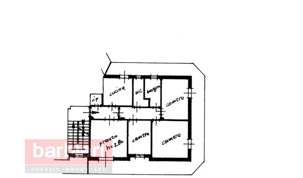
Rif. 472 - Vendiamo a Milano Marittima, appartamento posto al primo piano del plesso immobiliare. La soluzione è così composta ingresso su disimpegno, ampio soggiorno affacciato sul balcone in cui trascorrere comodamente momenti all'aria aperta, cucina abitabile, disimpegno che conduce alla zona notte, due camere da letto matrimoniali, una camera singola e due bagni finestrati. Completa la soluzione un ampio garage al piano terra. Ottima soluzione come investimento o come residenziale. RIF. 472

Altre caratteristiche

Stato Immobile
In buone condizioni
Vani
5
Tipo di cucina
Abitabile
Balconi
1
Terrazze / Logge
1
Piano
1
Tipologia Immobile
Appartamento
Categoria Immobile
Case e Appartamenti
Contatta Agenzia
Proposto da: AGENZIA BARBIERI CERVIA

Quotazioni immobiliari per viale milano 71 - Cervia