91 mq
3
2
Giardino privato
Autonomo
A3

Descrizione

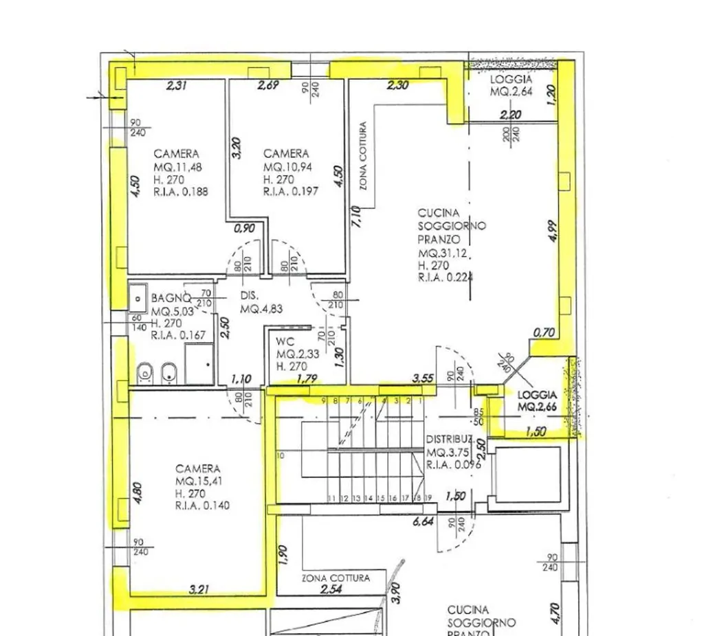
Rif. BRB 122 - Vendiamo a Cervia, zona Malva Sud, in tranquilla area residenziale immersa nel verde, vicina al centro storico e ben collegata a tutti i servizi, appartamento con tre camere da letto e due bagni in palazzina di sole 6 unità dotata di ascensore. L'immobile posto al piano primo si compone di soggiorno con angolo cottura e terrazzo loggiato, bagno principale finestrato con box doccia, spaziosa camera da letto matrimoniale, due camere da letto doppie ed ulteriore bagno di servizio. Completa la soluzione una cantina ed un posto auto di proprietà. Gli immobili saranno realizzati con finiture e materiale di alto livello, dotati di pannelli solari, impianto di riscaldamento e raffrescamento a pavimento con pompa di calore e tutti gli accorgimenti edilizi ed impiantistici atti ad ottenere classe energetica A. Sarà dotato di allarme, infissi ad alte prestazioni acustiche e termiche, cancelli motorizzati, cucina predisposta per piano cottura ad induzione. La soluzione si intesta da privato, imposta di registro. Consegna stimata per Aprile/Maggio 2024. RIF. 122.

Altre caratteristiche

Stato Immobile
In ottime condizioni
Anno costruzione
2023
Vani
4
Tipo di cucina
Angolo Cottura
Balconi
1
Terrazze / Logge
1
Piano
1
Ascensore
Tipologia Immobile
Appartamento
Categoria Immobile
Case e Appartamenti
Contatta Agenzia
Proposto da: AGENZIA BARBIERI CERVIA

Quotazioni immobiliari per Nemi - Cervia