80 mq
2

Descrizione

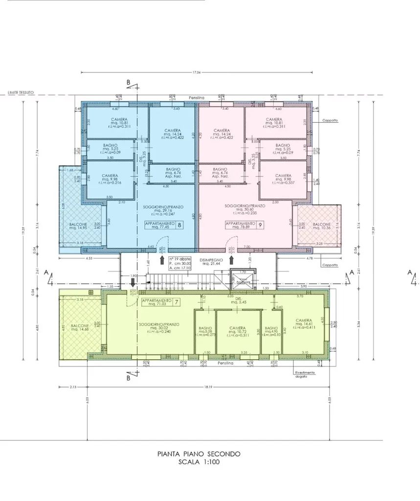
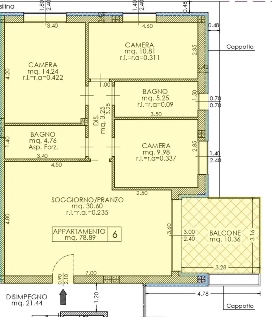
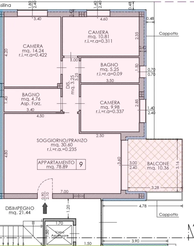
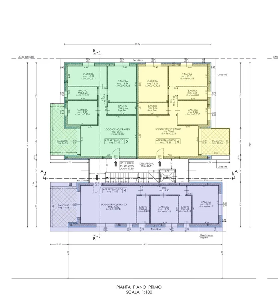
Rif. BRB408-QUADRI - Vendiamo a Pinarella, quadrilocali di nuova costruzione in contesto residenziale e limitrofi a tutti i servizi. Le soluzioni immobiliari disponibili si trovano al piano terra, primo e secondo piano. Gli appartamenti verranno dotate di tutti i confort e rifinite con materiali di altissimo livello. Sono così sviluppati: ingresso su un'ampia zona giorno con angolo cottura con affaccio sul giardino e/o su terrazzo, disimpegno che conduce alla zona notte con tre camere da letto e due bagni di cui uno cieco. A seconda della soluzione scelta, compresi nel prezzo uno/due posti auto ed una cantina al piano terra. Prezzi a partire da euro 300.000, 00 Maggiori informazioni in ufficio RIF. 408-QUADRI.

Altre caratteristiche

Stato Immobile
In buone condizioni
Vani
4
Piano
Terra
Ascensore
Tipologia Immobile
Appartamento
Categoria Immobile
Case e Appartamenti
Contatta Agenzia
Proposto da: AGENZIA BARBIERI CERVIA

Quotazioni immobiliari per Calabria - Cervia