2
2

Descrizione

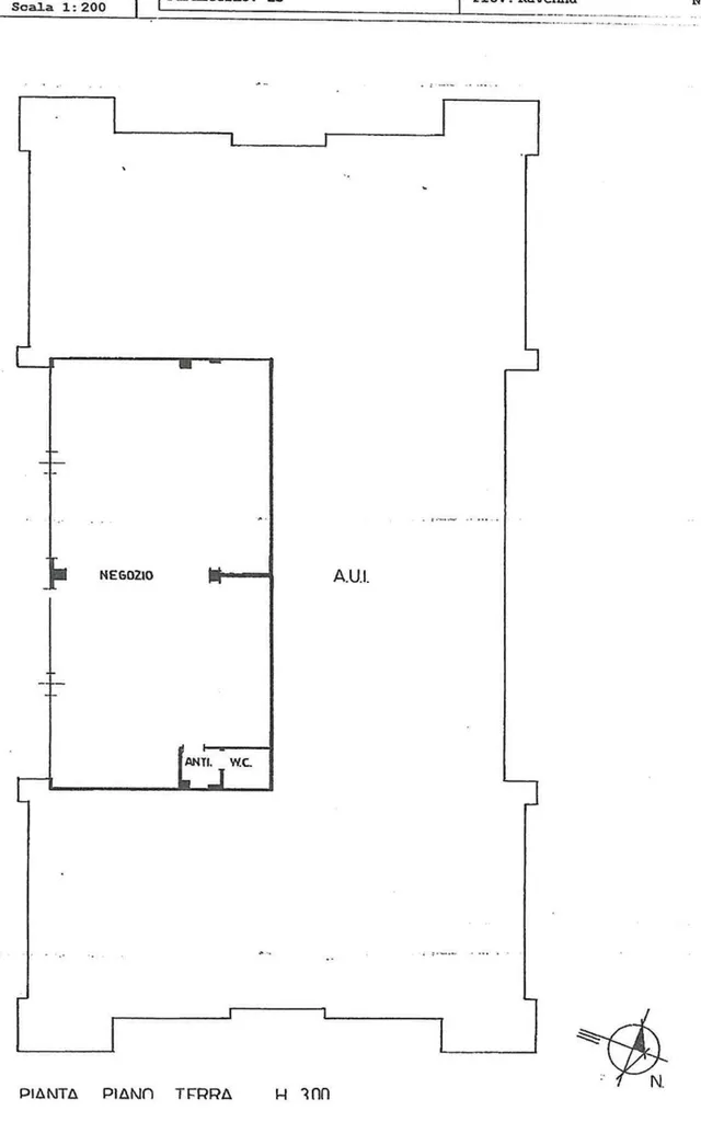
Rif. BRB130 - Vendiamo a Cervia, vicino al centro, in contesto commerciale ed in zona di forte passaggio, la proprietà dei muri di un negozio negozio di 170 mq, attualmente affittato. In zona commerciale, di passaggio e vicino a tutti i principali servizi, si concretizza come un ottimo investimento. Maggiori info in ufficio. Rif. 130.

Altre caratteristiche

Categoria Immobile
Commerciali e Attività
Tipologia Immobile
Negozio / Locale Commerciale
Metri Quadri
170 mq
Classe energetica
In attesa di certificazione
Riscaldamento
Autonomo
Piano
1
Bagni
2
Stato Immobile
In buone condizioni
Contatta Agenzia
Proposto da: AGENZIA BARBIERI CERVIA

Quotazioni immobiliari per Caduti per la Libertà - Cervia