2

Descrizione

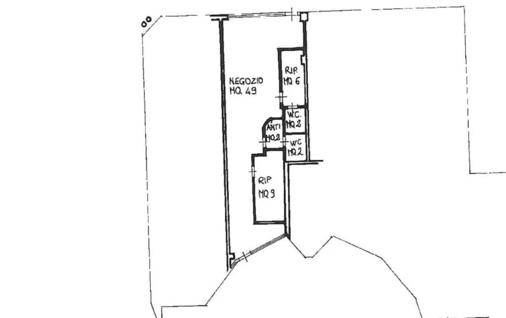
Rif. BRB506 - Vendiamo a Cervia, in posizione centrale e di forte passaggio negozio di circa 70 mq. Il negozio è dotato di 2 ingressi e attualmente è suddiviso in vari ambienti fra cui un'ampia area espositiva, 2 bagni, 2 stanze ed è servito da un ampia vetrina. In ottime condizioni, si presta a diverse soluzioni commerciali (ambulatorio, vendita la dettaglio, ufficio). Posizione splendida, con vetrina sulla principale piazza di Cervia. Maggiori info in ufficio.

Altre caratteristiche

Categoria Immobile
Commerciali e Attività
Tipologia Immobile
Negozio / Locale Commerciale
Metri Quadri
70 mq
Classe energetica
In attesa di certificazione
Piano
Terra
Bagni
2
Stato Immobile
In buone condizioni
Contatta Agenzia
Proposto da: AGENZIA BARBIERI CERVIA

Quotazioni immobiliari per Andrea Costa - Cervia