2

Descrizione

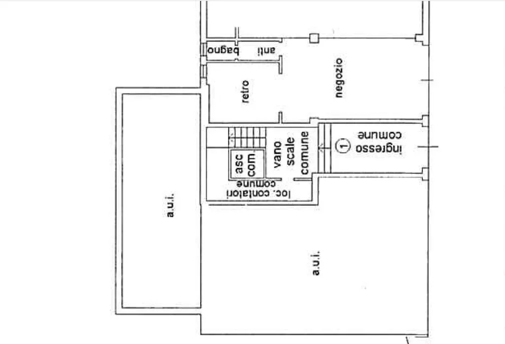
Rif. BRB896 - Vendiamo a Lido di Classe, in zona di forte passaggio doppio negozio completamente ristrutturato con tre vetrine fronte strada. La soluzione è situata nella via principale, vicina alla spiaggia e ad altre attività del posto. Possibilità di acquistare solamente una delle due soluzioni immobiliari o eventualmente di prendere in affitto anche l'attività precedentemente avviata con un'ottima clientela. Completano l'offerta tre posti auto all'interno della corte condominiale. Maggiori informazioni in ufficio. RIF. 896.

Altre caratteristiche

Categoria Immobile
Commerciali e Attività
Tipologia Immobile
Negozio / Locale Commerciale
Metri Quadri
120 mq
Classe energetica
In attesa di certificazione
Riscaldamento
Autonomo
Piano
Terra
Bagni
1
Stato Immobile
In buone condizioni
Contatta Agenzia
Proposto da: AGENZIA BARBIERI CERVIA

Quotazioni immobiliari per Fratelli Vivaldi - Cervia