1

Descrizione

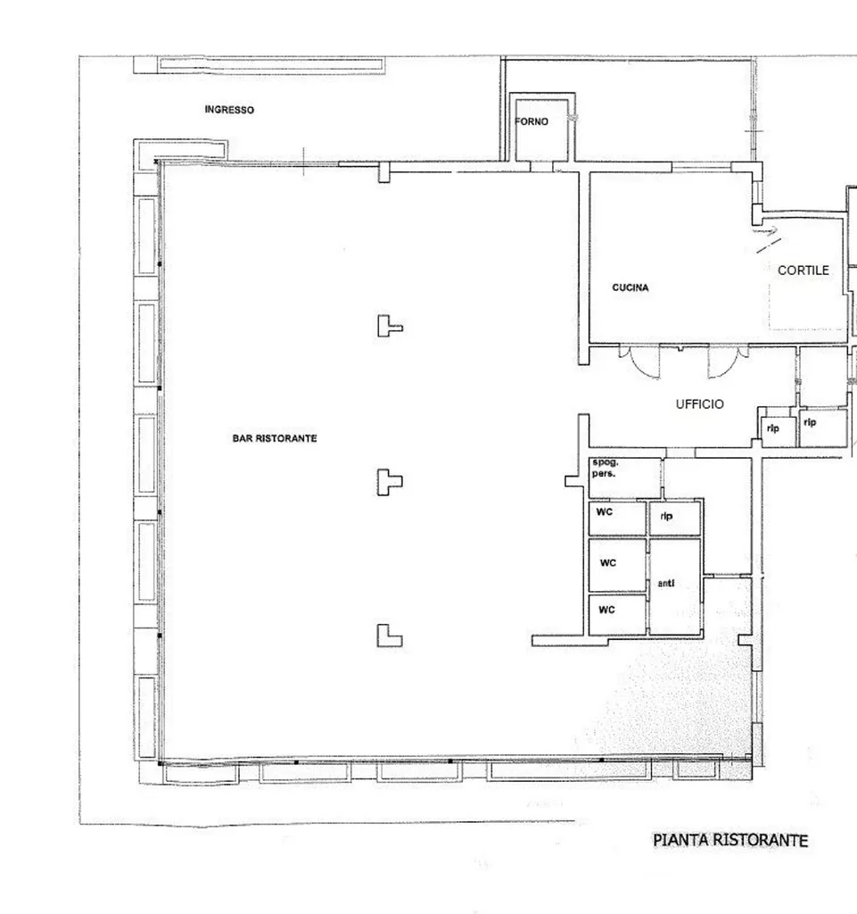
Rif. BRB347 - Vendiamo a Lido di Savio, in posizione centrale e di forte passaggio, a pochi minuti dalla spiaggia, attività ristorativa ottimamente avviata e recensita da un'ampia cerchia di clientela con un unica gestione da 27 anni. Trattasi di bar/ristorante di 400mq con 150 posti a sedere. Il locale dispone di un piccolo cortile esterno dove poter disporre ulteriori tavoli. Maggiori informazioni in ufficio. RIF. 347.

Altre caratteristiche

Categoria Immobile
Commerciali e Attività
Tipologia Immobile
Negozio / Locale Commerciale
Metri Quadri
405 mq
Classe energetica
In attesa di certificazione
Riscaldamento
Autonomo
Piano
Terra
Bagni
3
Stato Immobile
In buone condizioni
Contatta Agenzia
Proposto da: AGENZIA BARBIERI CERVIA

Quotazioni immobiliari per Cervia