400 mq
2
In attesa di certificazione

Descrizione

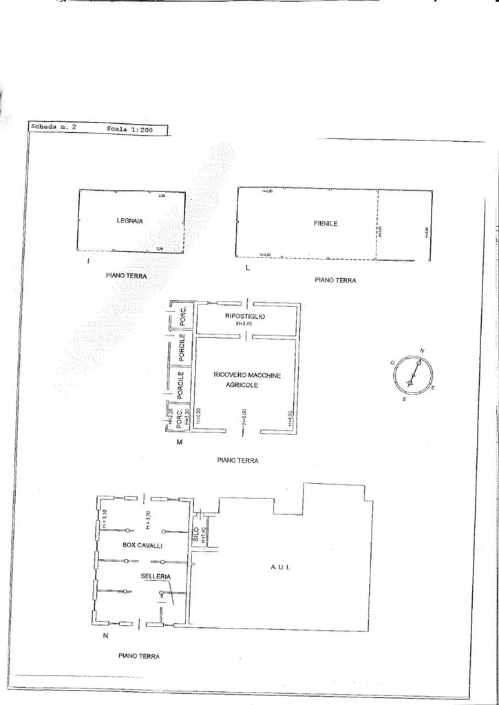
Rif. BRB 304 - Vendiamo a Savio di Ravenna, a pochi chilometri dalle città di Ravenna, ForlìCesena e dalle spiagge di Cervia e Milano Marittima, in posizione di totale privacy e tranquillità, splendido casale da ristrutturare. L'immobile di quasi 400 mq. è disposto su due livelli, piano terra e primo. Completano la proprietà vari locali di servizio fra cui un ampio deposito attrezzi, una legnaia, un fienile ed una scuderia. Possibilità di acquistare a parte un ulteriore appezzamento di terreno agricolo di 7 ettari circa. Rif. 304.

Altre caratteristiche

Stato Immobile
Da ristrutturare
Vani
14
Piano
Terra
Tipologia Immobile
Rustico / Casale
Categoria Immobile
Case e Appartamenti
Contatta Agenzia
Proposto da: AGENZIA BARBIERI CERVIA

Quotazioni immobiliari per Lunetta - Cervia