520 mq
2
Giardino privato
In attesa di certificazione

Descrizione

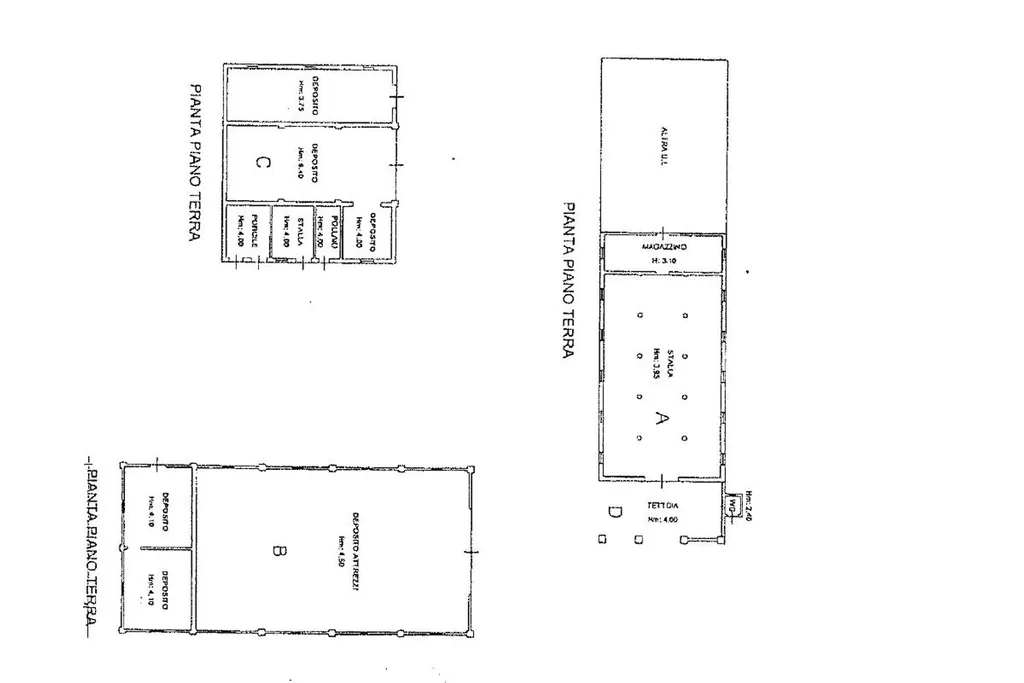
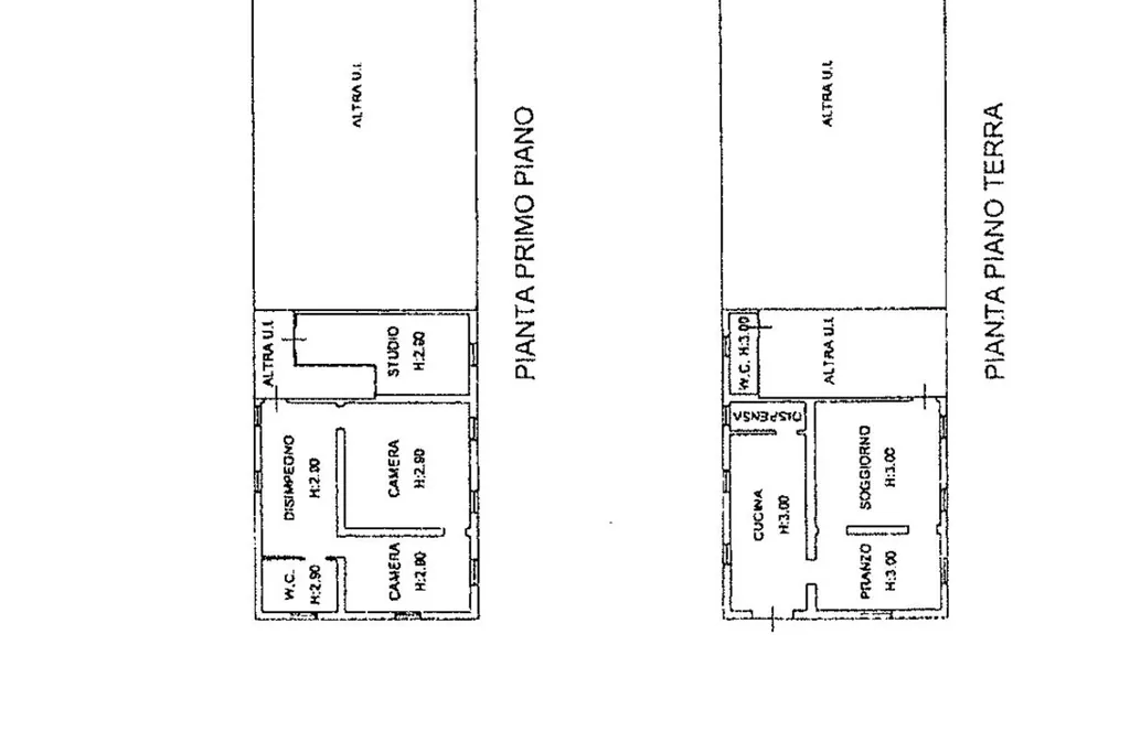
Rif. BRB830 - Vendiamo a splendido ed ampio casale caratteristico a pochi km da Ravenna. Il rustico è posizionato su un ampio lotto terreno, ben distante da altre costruzioni. Il casale ha una metratura complessiva di oltre 360 mq, l'immobile si presenta in discrete condizioni di manutenzione, il tetto è stato rifatto recentemente. L'immobile presenta ottime potenzialità sia come residenziale che come attività Agricola e investimento.

Altre caratteristiche

Stato Immobile
Da ristrutturare
Vani
10
Piano
Terra
Tipologia Immobile
Rustico / Casale
Categoria Immobile
Case e Appartamenti
Contatta Agenzia
Proposto da: AGENZIA BARBIERI CERVIA

Quotazioni immobiliari per Chiavica Fenaria - Ravenna