675 mq
3
Giardino privato
In attesa di certificazione

Descrizione

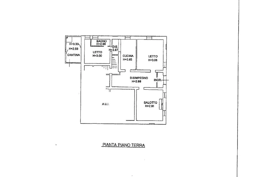
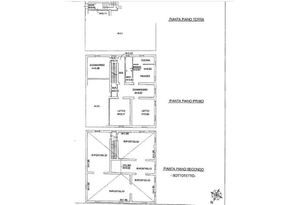
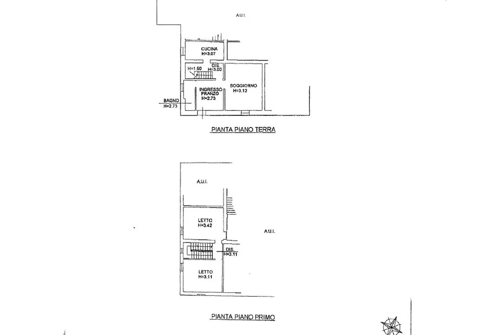
Rif. BRB832 - Vendiamo nella cornice della campagna Ravennate, ma al contempo in posizione strategica per i principali servizi e le più importanti province romagnole, proponiamo in vendita caratteristico casale con ampio parco di proprietà. La soluzione, disposta su 3 livelli fuori terra, attualmente è composta da 3 unità, e ampio magazzino/ricovero attrezzi. Immobile da restaurare, ottima soluzione per famiglie numerose o per chi vorrebbe iniziare un'attività di agriturismo/BB. Maggiori informazioni presso i nostri uffici.

Altre caratteristiche

Stato Immobile
In buone condizioni
Vani
21
Piano
Terra
Tipologia Immobile
Rustico / Casale
Categoria Immobile
Case e Appartamenti
Contatta Agenzia
Proposto da: AGENZIA BARBIERI CERVIA

Quotazioni immobiliari per Alfredo Poggi 2 - Ravenna