85 mq
3
Giardino privato
In attesa di certificazione

Descrizione

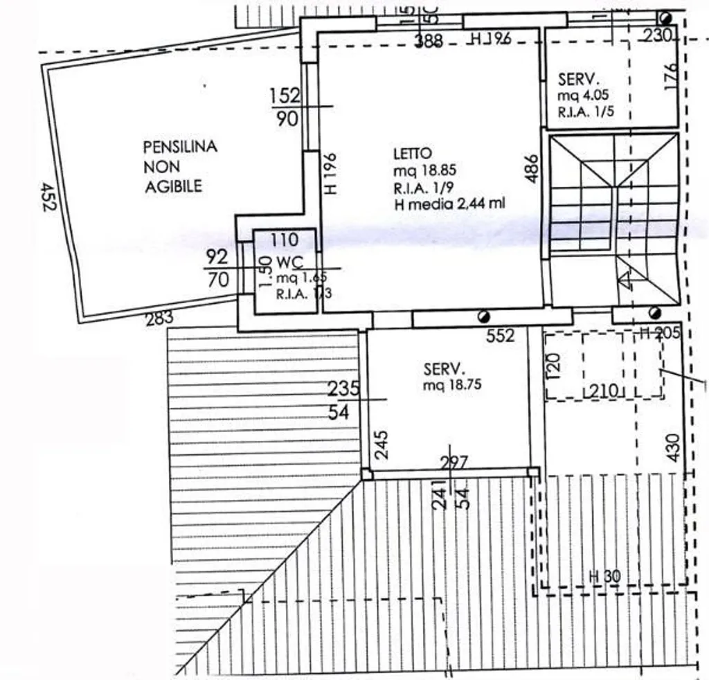
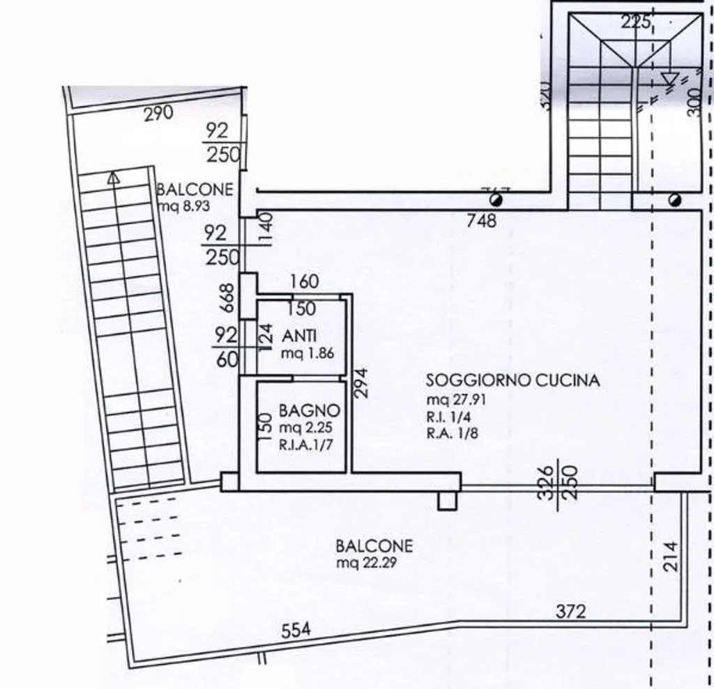
Rif. BRB16-2 - Vendiamo a Milano Marittima in zona tranquilla, residenziale e non lontano dal mare, in piccola palazzina completamente ristrutturata, appartamento su due livelli. L'immobile è composto da soggiorno con angolo cottura, affacciati su uno splendido terrazzo e bagno padronale con box doccia. Al piano superiore troviamo una grande camera da letto con guardaroba e bagno privato, camera di servizio con bagno e ampio terrazzo. Garage al piano terreno. L'immobile è dotato di impianti autonomi di riscaldamento/ condizionamento e di finiture di lusso. Completa l'offerta l' ottimo arredamento Rif. 16-2.

Altre caratteristiche

Stato Immobile
In buone condizioni
Anno costruzione
2014
Vani
3
Terrazze / Logge
1
Piano
Terra
Tipologia Immobile
Appartamento
Categoria Immobile
Case e Appartamenti
Contatta Agenzia
Proposto da: AGENZIA BARBIERI CERVIA

Quotazioni immobiliari per Melozzo da Forlì - Cervia