105 mq
2
1
Garage/Posto Auto
Giardino privato
Autonomo
A1

Descrizione

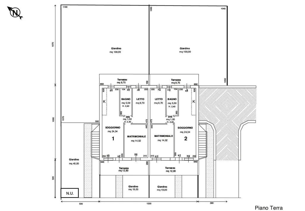
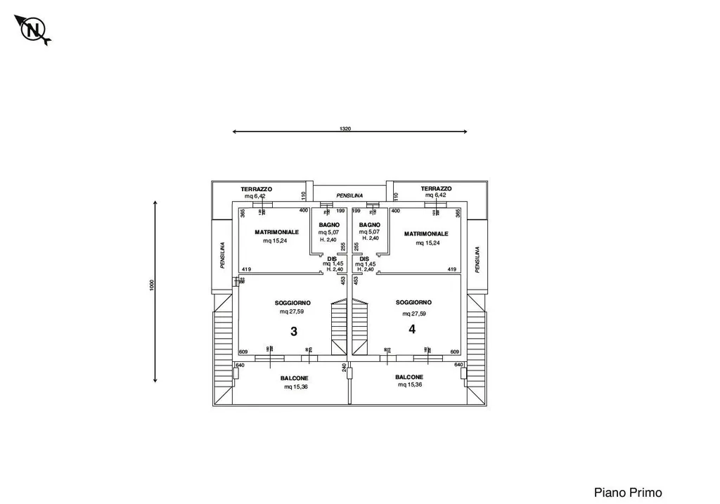
Rif. 484 - Proponiamo in vendita, di prossima costruzione, Trilocale con giardino a Cervia (RA) nella Via Verbano, zona Malva Sud. Si tratta di una nuova palazzina di quattro appartamenti, con ingressi indipendenti e giardini privati. L’appartamento è situato al piano terra, con accesso dal giardino privato ed è composto da soggiorno-pranzo, disimpegno, una camera matrimoniale, una camera doppia ed un bagno. Al piano interrato dispone di un garage. Dispone inoltre di un secondo giardino privato sul retro. Impianto di fotovoltaico autonomo. Riscaldamento a pavimento, infissi in pvc, tapparelle elettriche e infine finiture personalizzabili .La palazzina verrà edificata in base alle normative antisismiche e con certificazione energetica in Classe A. La consegna è prevista nel 2025.

Altre caratteristiche

Anno costruzione
2025
Vani
3
Tipo di cucina
Angolo Cottura
Balconi
1
Terrazze / Logge
1
Piano
Terra
Piani totali della palazzina
3
Tipologia Immobile
Appartamento
Categoria Immobile
Case e Appartamenti
Contatta Agenzia
Proposto da: AGENZIA BARBIERI CERVIA

Quotazioni immobiliari per Viale Verbano 44 - Cervia