80 mq
1
Giardino privato
In attesa di certificazione

Descrizione

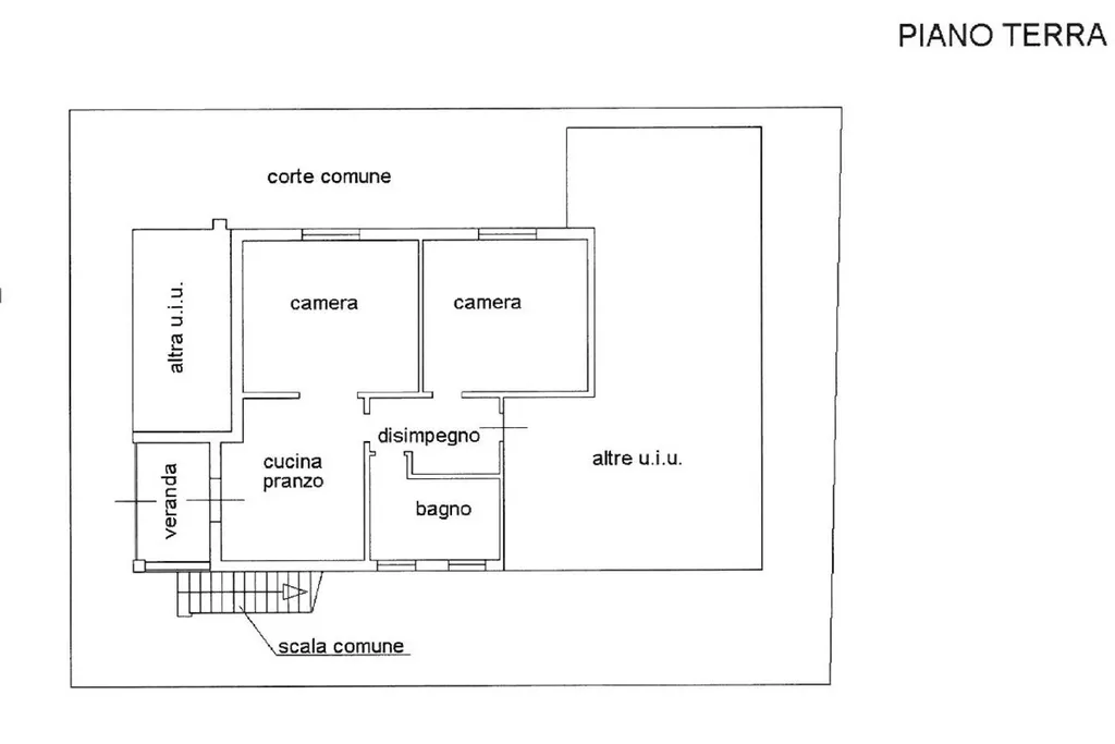
Rif. BRB169-PT1 - Vendiamo a Cervia, sul lungomare, appartamento al piano terreno con giardino ed ingresso privati. L'immobile fa parte di una piccola palazzina di sole cinque unità, completamente restaurata e di gradevole aspetto, ed è composto da soggiorno-angolo cottura, due camere matrimoniali, bagno e giardino privato con possibilità installare un gazebo di mq 15. Sono necessarie alcune opere di ristrutturazione interna (es: installazione riscaldamento, climatizzazione e infissi) per rendere unica ed irripetibile questa offerta. Rif. 169-PT1.

Altre caratteristiche

Stato Immobile
In buone condizioni
Vani
3
Piano
Terra
Tipologia Immobile
Appartamento
Categoria Immobile
Case e Appartamenti
Contatta Agenzia
Proposto da: AGENZIA BARBIERI CERVIA

Quotazioni immobiliari per Grazia Deledda - Ravenna