80 mq
2
In attesa di certificazione

Descrizione

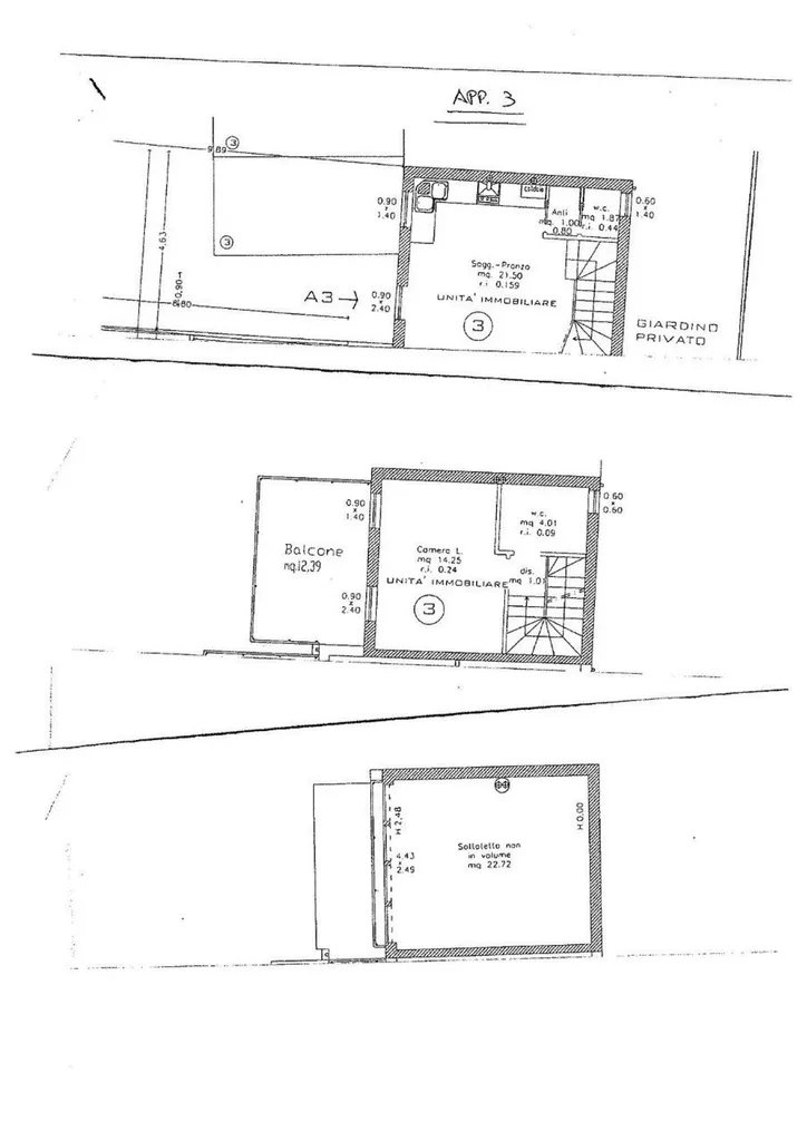
Rif. BRB207-PT - Vendiamo a Milano Marittima villetta a schiera disposta su 3 livelli. La zona giorno al piano terra si compone di soggiorno con angolo cottura e un bagno di servizio. Al primo piano troviamo la prima luminosa camera matrimoniale che affaccia su un bel terrazzo abitabile e un bagno. Al piano mansardato la seconda camera da letto matrimoniale con un balconcino. Completano l'offerta due comodi posti auto e il giardino privato su tre lati. Rif. 207.

Altre caratteristiche

Stato Immobile
In buone condizioni
Vani
3
Terrazze / Logge
1
Piano
Terra
Tipologia Immobile
Villetta a schiera
Categoria Immobile
Case e Appartamenti
Contatta Agenzia
Proposto da: AGENZIA BARBIERI CERVIA

Quotazioni immobiliari per Arturo Toscanini - Cervia